Enquire about upcoming SIL/SDA homes in South East Melbourne Region

Twin Dwelling SIL In Frankston

Twin Dwelling SIL in Frankston

Frankston North, VIC, 3200

Property Features

Care Fast is proud to present our brand-new SDA SIL homes, purpose-built to provide exceptional care, comfort, and accessibility to disability community. Located in the vibrant and well-established suburb of Frankston North, this property boasts two thoughtfully designed dwellings that seamlessly blend privacy, accessibility, and a sense of community.
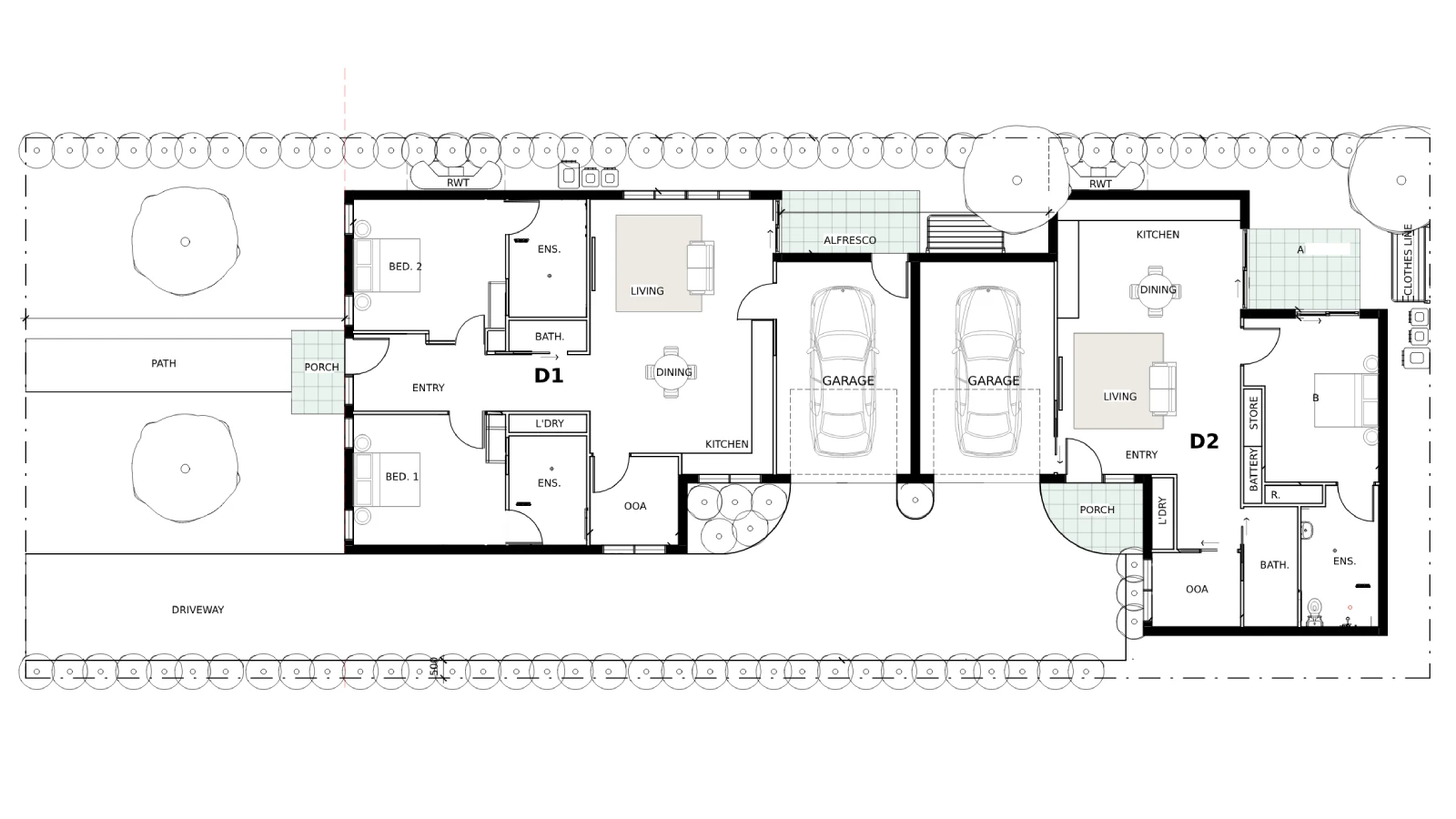
This brand-new dwelling features a knockdown rebuilt footprint, comprising Dwelling 1 with a 16.79sq build-up area and Dwelling 2 with a 13.56sq build-up area. It stands out as one of the most spacious high-physical support homes in the entire area.

Features:

  • Plans approved by a reputed NDIS SIL Assessor
  • Scheduled for completion by March 2025
  • Incorporation of high-quality, durable, and stylish materials throughout
  • Detailed attention to accessibility and functionality in every aspect of the home

Tailored Living Spaces for Enhanced Comfort and Support :

This property offers two distinct dwellings, each meticulously designed to cater to varying needs and preferences.
Dwelling 1: 2+OOA – High Physical Support – Ideal for 1:2 or 1:3 support
  • 2 Bedrooms + (OOA) Room: Designed to ensure round-the-clock support and care
  • Flexible SIL Arrangement: Perfect for 1:2 or 1:3 SIL support
  • 2 Ensuites: catering to each bedroom’s needs
  • Secure Garage: Includes safe and convenient parking

Dwelling 2: 1+OOA – Hybrid SDA – Ideal for 1:1 support

  • 1 Bedroom + (OOA) Room: Provides 24/7 support for the resident
  • Ensuite: A comfortable and private space for the resident
  • Shared Bathroom: Offers added convenience for the family and staff
  • 1:1 SIL Arrangement: Ideal for personalised, one-on-one support
  • Secure Garage: Includes safe and convenient parking
Access to Healthcare & Transportation :

Residents can take advantage of the property’s close proximity to Frankston Hospital, ensuring prompt access to essential healthcare services when needed. Furthermore, Frankston Station, located just 3km away, provides convenient transportation options for residents commuting within the area or to neighboring regions.

Secure your future in these thoughtfully designed accommodations, tailored to elevate quality of life and promote independence. Express your interest today and join a community committed to fostering comfort, accessibility, and inclusivity for all.

Submit Your Interest TODAY!

Local Area

  • The property is located in this zone.
  • 3km to the nearest train station at Frankston Station, Frankston VIC, Australia.
  • 487m to the nearest bus stop at Monterey Community Park/Forest Dr, Frankston North VIC, Australia.
  • 3km to the nearest hospital at Frankston Hospital, Hastings Road, Frankston VIC, Australia.
  • 384m to the nearest park at Monterey Community Park Playground, Monterey Boulevard, Frankston North VIC, Australia..
carefast

Let’s start the conversation

Share your query with us, and we’ll respond shortly with the guidance you need.

    Footer btn for mobile


      This will close in 20 seconds

      Schedule a Visit

      Skip to content