Enquire about upcoming SIL/SDA homes in South East Melbourne Region

HPS SDA Home in Kalkallo

High Physical Support SDA Home in Kalkallo

Melbourne north west, VIC, 3064

×

Schedule a Visit

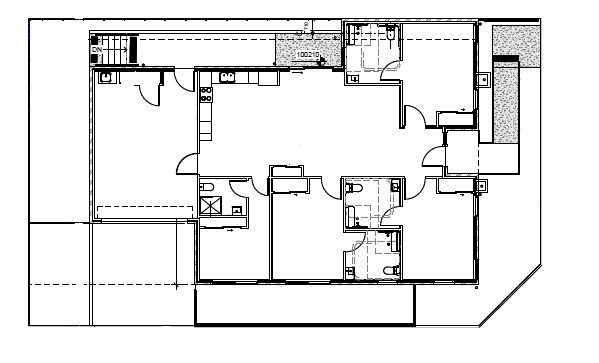
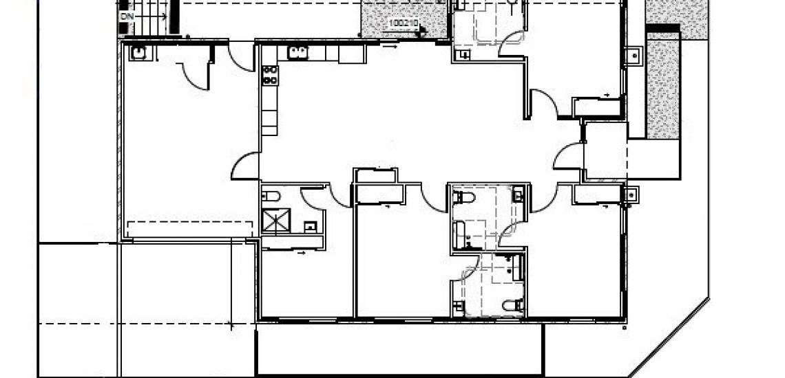
Property Features

This thoughtfully designed SDA home supports participants with High Physical Support needs. It features wide doorways, assistive technology provisions, and fully accessible ensuites in each bedroom.

Key Features:

  • Spacious open-plan living, allowing easy mobility and shared living
  • Three bedrooms with accessible ensuites, supporting privacy and personal care needs
  • Assistive technology provisions and wider access throughout the home
  • Ceiling hoist provisions
  • Onsite Overnight Assistance available, supporting participants who need reassurance or help overnight

Location Highlights:

  • Donnybrook Train Station – minutes away
  • Toyon Road Shopping Centre – nearby essentials
  • Northern Hospital Epping – for health and specialist care
  • Bells Avenue Reserve – local green space
The Care Fast SIL Advantage:

At Care Fast, we are committed to delivering 24/7 Supported Independent Living (SIL) services that empower participants to live fulfilling, independent lives. Here’s what sets Care Fast apart:

  • Experienced Support Team: Our compassionate, skilled support team provides personalised assistance with personal care, meal preparation, medication management, and community participation.
  • Individualised Care Plans: We tailor our support to each participant’s unique needs, focusing on creating a nurturing environment that promotes growth, independence, and well-being.
  • Inclusive Community: Our commitment goes beyond just care — we build lasting, supportive relationships, creating a safe and inclusive environment where participants thrive.

Enquire now to learn more or schedule a property tour!

Local Area

  • The property is located in this zone
  • 3km to the nearest train station at Donnybrook Rd, Donnybrook VIC 3064, Australia
  • 595m to the nearest shopping centre at 44 Toyon Rd, Kalkallo VIC 3064, Australia
  • 15km to the nearest hospital at Northern Hospital Epping, Cooper Street, Epping VIC, Australia
  • 799m to the nearest park at Bells Avenue Reserve, Bells Avenue, Kalkallo VIC, Australia
carefast

Let’s start the conversation

Share your query with us, and we’ll respond shortly with the guidance you need.

    Footer btn for mobile


      This will close in 20 seconds

      Skip to content