Enquire about upcoming SIL/SDA homes in South East Melbourne Region

Dandenong, VIC, 3175

Purpose-Built HPS SIL Home in Dandenong

Dandenong, VIC, 3175

Home 1

Home 2

Property Features

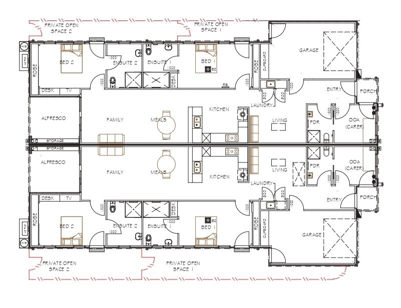
These two side-by-side SDA High Physical Support (HPS) SIL Homes are purpose-designed for participants with higher physical needs. Each home includes accessible ensuite bedrooms, wide circulation paths, step-free access, and a dedicated OOA room for overnight support.

The open-plan layout, accessible kitchen, and private outdoor areas create a safe and comfortable environment that supports daily routines and independence.
Care Fast provides 24/7 round-the-clock SIL services across both homes, offering consistent support with daily living, personal care, medication, and community participation..

Home 1: Safe, Accessible & Participant-Focused

Key Features

  • Two bedrooms, with accessible ensuite
  • Ceiling-hoist provisions to support safe transfers
  • Fire sprinkler protection installed throughout
  • Open kitchen, meals and living area designed for smooth wheelchair movement
  • OOA room positioned for quick and safe overnight support
  • Wide circulation paths allowing unrestricted mobility
  • Direct access to a private alfresco area ideal for relaxation or sensory regulation

Home 2: Bright, Modern & Designed for Independence

Key Features

  • Two bedrooms with fully accessible ensuites
  • Ceiling-hoist transfer pathways
  • Integrated fire sprinkler system
  • Open-plan kitchen, meals, and living design encouraging daily routines and social connection
  • Private outdoor space offering natural light and quiet time
  • Accessible internal pathways supporting easy wheelchair use
  • Dedicated OOA room ensuring responsive overnight support

Location Highlights

  • Nearest Hospital: Dandenong Hospital
  • Nearest Shopping Centre: Dandenong Square Shopping Centre, McCrae Street
  • Nearest Train Station: Dandenong Station, Foster Street
  • Nearest Park: Dandenong Park, Lonsdale Street

Care Fast SIL Advantage

At Care Fast, we are committed to delivering 24/7 Supported Independent Living (SIL) services that empower participants to live fulfilling, independent lives. Here’s what sets Care Fast apart:

  • Experienced Support Team: Our compassionate, skilled support team provides personalised assistance with personal care, meal preparation, medication management, and community participation.
  • Individualised Care Plans: We tailor our support to each participant’s unique needs, focusing on creating a nurturing environment that promotes growth, independence, and well-being.
  • Inclusive Community: Our commitment goes beyond just care, we build lasting, supportive relationships, creating a safe and inclusive environment where participants thrive.

Register your interest or book a home viewing today!

Local Area

  • 687m to the nearest tram stop at Dandenong Station, Foster Street, Dandenong VIC, Australia
  • 338m to the nearest shopping centre at Dandenong Square Shopping Centre, McCrae Street, Dandenong VIC, Australia
  • 952m to the nearest hospital at Dandenong Hospital, David Street, Dandenong VIC, Australia
  • 826m to the nearest park at Dandenong Park, Lonsdale Street, Dandenong VIC, Australia
carefast

Let’s start the conversation

Share your query with us, and we’ll respond shortly with the guidance you need.

    Footer btn for mobile


      This will close in 20 seconds

      Schedule a Visit

      Skip to content