Enquire about upcoming SIL/SDA homes in South East Melbourne Region

Sunshine, VIC, 3020

Accessible Accommodation In Sunshine for SIL/MTA

Sunshine, VIC, 3020

×

Schedule a Visit

Property Features

Expression of Interest for Specialist Disability Accommodation (SDA) Independent Living (IL) Units

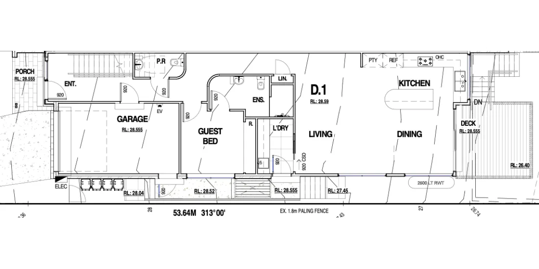
We are accepting expressions of interest for 4 spacious, modern and identical Specialist Disability Accommodation (SDA) Independent Living (IL) units at Boreham Street, Sunshine. These thoughtfully designed villas offer generous space, making them ideal for participants requiring support, particularly those with Improved Liveability (IL) needs.

Property Overview:
  • Ground Floor: Includes a guest bedroom and an ensuite, making it ideal for flexible living arrangements. Property showcase the bright, modern spaces with high-quality finishes, including a beautiful decking area for outdoor relaxation.
  • First Floor: Features three bedrooms, including a master bedroom, all with ensuites for added privacy and comfort. The master bedroom and other areas, are designed to offer a luxurious and functional living environment, with ample space for a home office or additional storage.
  • A spacious living and dining area that offers a modern, open-plan design with ample natural light.
  • A stylish bathroom with modern fixtures.
  • The unit’s facade, representing the high-quality design and curb appeal.
  • Private Car Park Garage: Dedicated parking space included for each villa.
  • Modern Amenities:
    • Broadband internet
    • Built-in wardrobes
    • Heating and cooling system
    • Fully equipped kitchen with a microwave and refrigerator
    • Laundry facilities including a washing machine

Location Advantage:

  • Conveniently Located: These properties are situated in Sunshine, a well-connected suburb in Melbourne’s western region. They are close to local amenities, public transport, parks, and shopping centres, making it a great location for independent living with easy access to essential services.
  • Transport Links: Easy access to public transport options, including bus routes and Sunshine railway station, ensuring seamless connectivity to Melbourne CBD and other major areas.
  • Community and Recreation: Proximity to local parks, recreational facilities, and community centres makes it perfect for residents who enjoy outdoor activities and community involvement.
Best Suited For:

These units are designed to foster an inclusive living environment, with neighbouring villas offering similar layouts and support features. This provides a supportive, community-oriented atmosphere where residents can enjoy independence alongside like-minded individuals. The design is ideal for Improved Liveability (IL) participants, offering a balance of comfort, convenience, and independence in a modern, supportive setting.

Local Area

  • The property is located in this zone
  • 757m to the nearest train station at Sunshine, City Pl, Sunshine VIC 3020, Australia.
  • 5km to the nearest tram stop at 59-Droop St/Ballarat Rd (Footscray), Footscray VIC, Australia.
  • 4km to the nearest bus stop at Allison St/Hilma St, Sunshine West VIC, Australia.
  • 8km to the nearest ferry station at Westgate Punt Ferry Service, Lorimer Street, Port Melbourne VIC, Australia.
  • 138m to the nearest shopping centre at Sunshine Marketplace, Harvester Road, Sunshine VIC, Australia.
  • 3km to the nearest hospital at Sunshine Hospital, Furlong Road, St Albans VIC, Australia.
  • 2km to the nearest park at Arthur Beachley Reserve, Ardoyne Street, Sunshine VIC, Australia.
  • 881m to the nearest medical practice (GP) at Durham Road Clinic, Durham Road, Sunshine VIC, Australia.
carefast

Let’s start the conversation

Share your query with us, and we’ll respond shortly with the guidance you need.

    Footer btn for mobile


      This will close in 20 seconds

      Skip to content